坤和·和家园:山景蛮不错 配套在完善
![]() |
![]() |
记者 朱华
本期鉴房嘉宾:
省某建设集团建筑安装公司
高级工程师 刘先生
本期鉴赏楼盘:坤和·和家园
4月9日下午,我们鉴房团一行驱车前往位于杭州西湖区西溪路128号的坤和·和家园售楼处,当临近售楼处时,发现街道两侧停满了杭州以及来自台州、温州、宁波等外地汽车。原来,我们无意中赶了个巧,正遇上坤和·和家园懿园9号楼山景公馆开盘的前一天。
售楼处前已排起长队,一、两百人在小凳子上安坐,等着领取售房小号。来自杭州的黄先生,这天上午得到懿园即将开盘的消息,临近中午才匆匆赶到的他,小凳上的编号已排在九十号之后,他说自己现在还没领到号,不知道这次能不能买上房子。而从台州赶来的王女士则笃定得多,她说,当得知心仪已久的坤和·和家园房子要开盘,她前一天下午就已找人连夜排队,就为买到这期推出的140平方米精装修房。
漏夜排队买房,这在眼下的杭城几成常态,坤和·和家园只是其中之一。该楼盘距杭城黄龙商圈8公里,每平方米售价25000~26000元,这样的精装修高层公寓,性价比如何?该不该为它的精装修买单?是否值得投资?本期鉴房版将为你作一解读。
据销售人员介绍,4月10日坤和·和家园推出的房源为100套懿园9号楼140平方米精装小高层公寓,预计将于近日推出的还有和轩66平方米酒店式公寓,售价都在25000-26000元/平方米左右。
山景挺不错
小区环境雅
山景资源是坤和·和家园最大的卖点。楼盘四周被连绵群山环抱,设计漂亮的楼房外立面,小区里疏林绿草,整个小区给人感觉是闹中取静、清新自在。对于这一点,购房者们也深为认同。来自台州的王女士说,之所以看中这里,就是因为小区拥有优美的自然环境,不可复制的山景。但也有购房者坦言,从缓坡迭起的西溪路一路驶来,沿途景观实在让人不敢恭维,只有到了坤和·和家园,才让人有眼前一亮的感觉。
配套待完善
小学已开建
小区环境虽不错,但在坤和·和家园片区所处的大西溪板块,商业、医疗、教育、交通等必备生活配套,与住宅建设速度相比相对滞后。我们从开发商处了解到,目前,与住宅小区配套的大型超市、知名餐饮连锁等或有意向,或正在装修,规划中的商业街还在起步阶段;幼儿园已经建成,计划引入一家甲级公办幼儿园,但引进哪一家及开园日期尚未确定。所以在生活配套的便捷方面,暂时还有欠缺。不过,位于坤和·和家园雍园组团西侧的求是教育集团和家园校区,已于4月9日动工建设,这对家有需上小学子女的业主们来说,无疑是个好消息。
户型尚可 缺点明显
由于预售盘还未竣工,我们看到懿园9号楼140平方米精装小高层公寓的样板房,设在坤和·和家园一座临时搭建的平板屋内。140平方米的户型为三室两厅两卫,从户型设计上可以看出,设计师为如何移景入房花了不少心思,客厅、餐厅以及主卧都设置了阳台,从各个阳台,可看见不远处层峦叠障的山峰,居于其间,有一种别样的山野情趣。
但这三个阳台的面积不大,比较局促。同行的省某建设集团建筑安装公司高级工程师刘先生认为,140平方米的户型房间总体格局尚可,但硬伤不少。如客厅、主卧室偏小,主卧室卫生间过大,走入式衣柜甚至赶不上一般衣柜的容积,从而显得这套140平方米的房子颇为局促,不够大气,舒适度有所降低。购房者方女士也认为,140平方米户型的房间格局不能令人满意,卫生间浪费大,客厅小,84%的得房率感觉还是有些小。
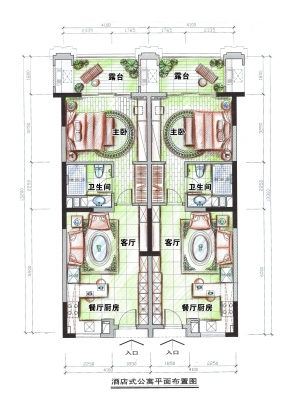
而即将开盘的和轩66平方米酒店式公寓,开发商声称,引入了一种全新的走廊式全透光概念。走进该楼层,屋外长廊的空间显得相当充裕,两旁还设立了休闲籐椅,让人感觉是步入了一家东南亚风格的宾馆,一派舒适惬意。
66平方米的公寓户型呈一字型格局,进门是一间厅,厨房、餐厅、客厅各占一隅,接着是中间过道,一侧为嵌入式镜面衣橱,另一侧为卫生间,暗卫无窗。再接下来就是卧室阳台,结构紧凑,功能齐备。刘先生指出,此户型缺点在于不透风,厨房与餐厅、客厅没有任何隔断,不符合中国人的传统居住习惯,居住实用功能差。
不过,这套66平方米酒店式公寓与其它酒店式公寓相比,也有其优势,首先它是纯住宅产权房,拥有70年产权,又是学区房,可购房入户;另外,它拥有一般酒店式公寓没有的烟道,可接通管道天然气,水电收费也非商业性收费。
140平方米三房是硬装修
66平方米户型可拎包入住
这次坤和·和家园推出的140平方米和66平方米两种户型都是精装修房,据开发商介绍,懿园9号楼140平方米三房一线山景公馆的精装修包括墙、地、卫生间、厨房的硬装修,空调、开关面板、洁具、龙头、热水器等固定性装修,但不包括家具等非固定性软装。而66平方米的酒店式公寓不仅硬装、软装全部囊括,色系也有深浅两色可选,业主可拎包入住。装修费用为2000-3000元/平方米。
以140平方米山景公馆的精装修样板房展示为例,中央空调选用的是YOYK(约克),开关控制面板、厨房油烟机、煤气灶用的是西门子品牌,另外还有杜拉维特洁具、汉斯格雅龙头、雷士照明等知名家居品牌。除了选用知名品牌,开发商还特别强调,他们这次将低碳理念引入精装修,采用太阳能供热,家居风格自然简约。然而细细察看整个居室装潢后,身为业内人士的刘先生发现,客厅、卫生间墙面、地面采用的人造石,品质一般;木材的选料也不见佳,工艺粗糙;在样板间厨房墙上,还出现了这样的字样:“厨房白色烤漆板吊顶,均改为石膏板防水乳胶漆顶”。
坤和·和家园:
山景蛮不错 配套在完善
“要花两三千元买精装修,我宁可价格低个两三千元,不要装修。”
“我去年6月花了每平米12000多元在和家园翰园买了套180平方米的房子,儿子现在杭州上大学,反正不是精装修也是这个价,整体房价都贵了。”
“我原来住城北,单位要搬到这儿附近,这里环境不错,可房价太高,但为了自住,也没办法。”
“迟买不如早买,房子肯定要涨,买房不会亏钱。再者,杭州总比我们台州好吧。”
“我是倾尽所有买房的,哥哥的姐姐的,各种能用的关系都用上了。我想全家人在杭州有这么一套房子,也就满足了。”
坤和·和家园作为杭州首屈一指的山景大盘,其景观优势是稀缺性资源,作为大盘自身配套也较为完善,产品类型从排屋、跃层、平层大宅,到140平方米、90平方米及60平方米左右的户型都有,适合不同类型的购房者。虽然周边配套、户型格局、装修材质等缺点在所难免,但其总体户型设计也有着可圈可点之处,是一个相对宜居的品牌楼盘。
投资有风险 购房需冷静
刘先生认为,140平方米的房子总价300多万元,这样的精装修,不能为其增值,反而成为一种累赘,有点划不来。如果单纯作为投资,平时如只拿租金收入,目前这一带的客源并不多,不如自住更为合适。
而60多平方米的酒店式公寓,虽说装修齐备,可拎包入住,但因面积所限,像个酒店,居家过日子也是西方化的,最适合度假之用,或是时尚小夫妻、单身贵族居住。因为现在这里的一手房总价已超150万元,脱手转卖时势必加价,则脱手不易。
心态各异
冷暖自知
房价一个劲向上蹿,让众多购房者心里着急上火。刚需购房者、投资客,以及原本的隔岸观火者,都急吼吼地投入这场购房热潮,变身“被”买房者。有人说,这是一拨恐慌性购房潮。我们不妨来听听和家园的诸多购房者,他们是怎么说的。

